Projet 1840
Etude de potentiel & planches décoration
Rénovation d’une maison pour une famille
Le lieu : Cossonay dans le canton de Vaud en Suisse
Projet étudié et réalisé en : 2023
Les habitants : Un couple et leurs deux enfants
Les besoins : Réaménager une maison pour l’adapter à la famille (maison de 1840 rénovée précédemment par l’ancien propriétaire)


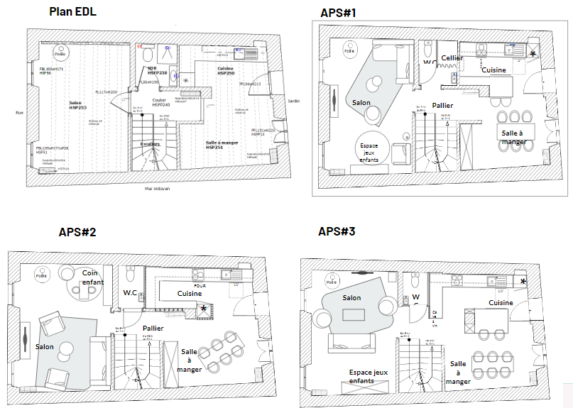
Plusieurs propositions pour ouvrir plus ou moins les espaces
L’étude de potentiel a permis aux habitants d’étudier plusieurs propositions d’aménagement, et leur permettre de voir les différentes possibilités qui s’offraient à eux pour la rénovation de leur maison. Au dernier étage un grand espace ouvert a été étudié pour créer plusieurs espaces : une chambre d’amis, une salle de bain, un bureau, un coin enfant et un salon avec vidéoprojecteur.
Extrait du book
Entre plans, photos et planches d’ambiance





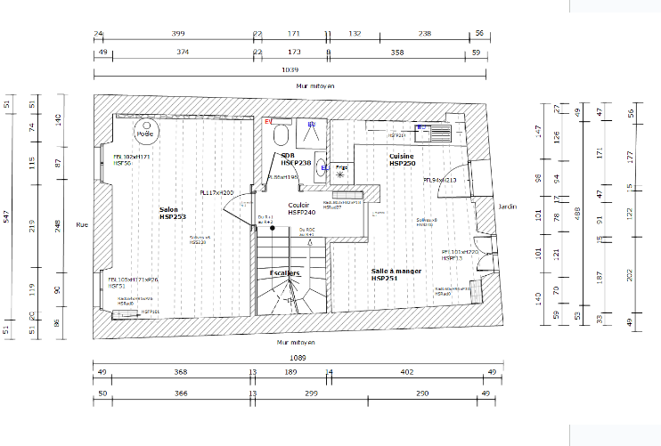
Avant les travaux..




