Projet l’Escale
Avant-projet sommaire
Rénovation de deux appartements
Le lieu : Sciez en Haute-Savoie
Projet étudié et réalisé en : 2025
Les habitants : Locataires de courte durée
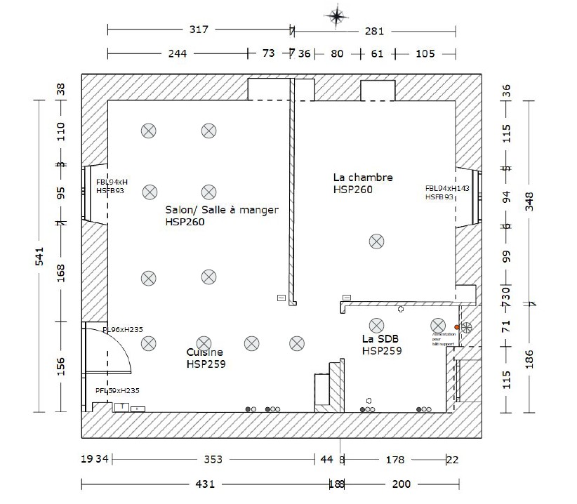
Les besoins : Rénover le rez-de-chaussée d’une maison en deux appartements


Optimiser, sublimer, accueillir.
L’aménagement a été pensé pour offrir des espaces confortables, lumineux et parfaitement optimisés, tout en conservant une atmosphère élégante et intemporelle.
Chaque appartement a été conçu avec le même souci du détail que dans un projet résidentiel, afin de créer une expérience d’accueil chaleureuse et qualitative pour les futurs occupants.
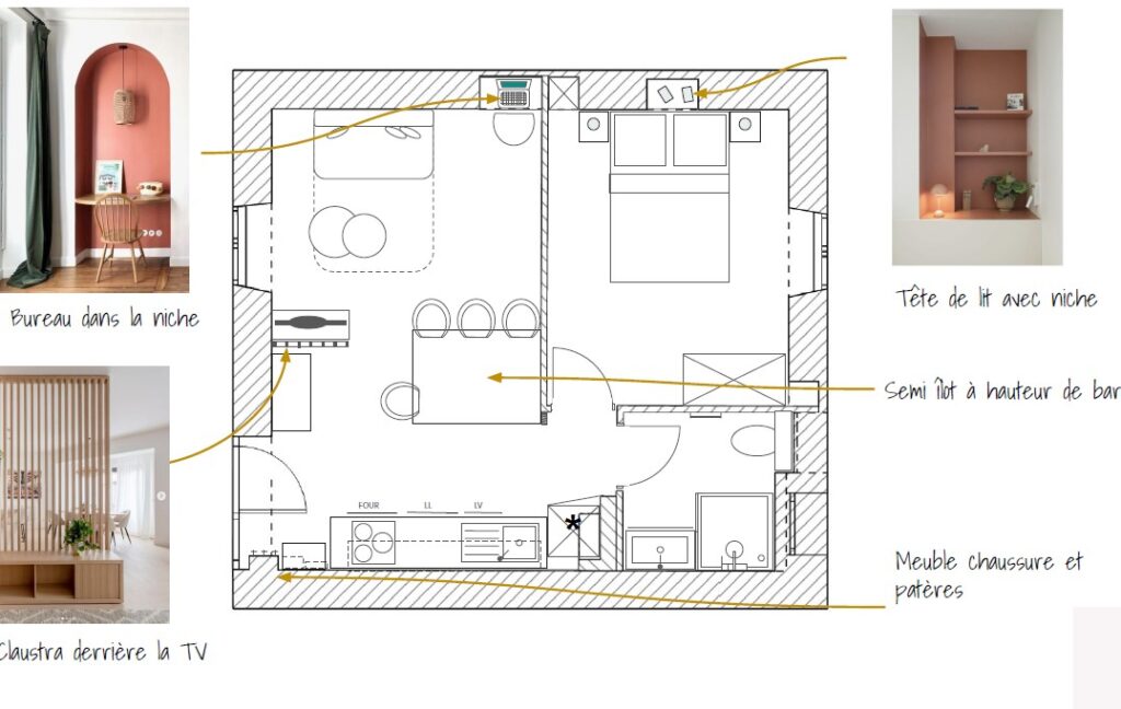
Extrait du book
Entre plans, photos et planches d’ambiance





Avant les travaux..




