Projet Zinal – Étude de potentiel et aménagement d’un chalet familial à Zinal, Canton du Valais, Suisse
Etude de potentiel
Rénovation d’un salon pour une famille
Projet étudié et réalisé en : 2022-2023
Le lieu : Zinal dans le canton du Valais en Suisse
Les habitants : Les parents, les enfants et les petits-enfants
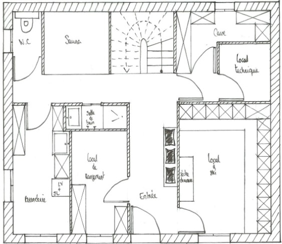
Les besoins : Concevoir l’aménagement intérieur d’un chalet de 240 m² en construction


Un chalet multigénérationnel
L’étude de potentiel a permis de proposer plusieurs propositions d’aménagement pour ce chalet qui réunit les grands-parents pour une résidence principale et les enfants et petits enfants pour une résidence secondaire.
Avec la prise en compte de chacun des habitants à différents moments de la semaine, des espaces conviviaux communs et des espaces plus intimistes pour chaque habitant ont été créés.
Le challenge était d’agencer toutes les pièces souhaitées dans ce chalet en tenant compte des contraintes du règlement d’urbanisme :espace de vie, cuisine, arrière cuisine, chambres, salle de bains, chambre d’amis, bureau, buanderie, sauna, entrée, local à ski, local technique, cave et local de rangement.
Extrait du book
Plusieurs propositions de plans pour présenter les différentes possibilités





